Logo Jinka

Clermont-Ferrand (63100)

03 avr. à 15:40

4 021 € / m²AppartementAgenceChanteranne

361 900 €

90 m²
4 pièces
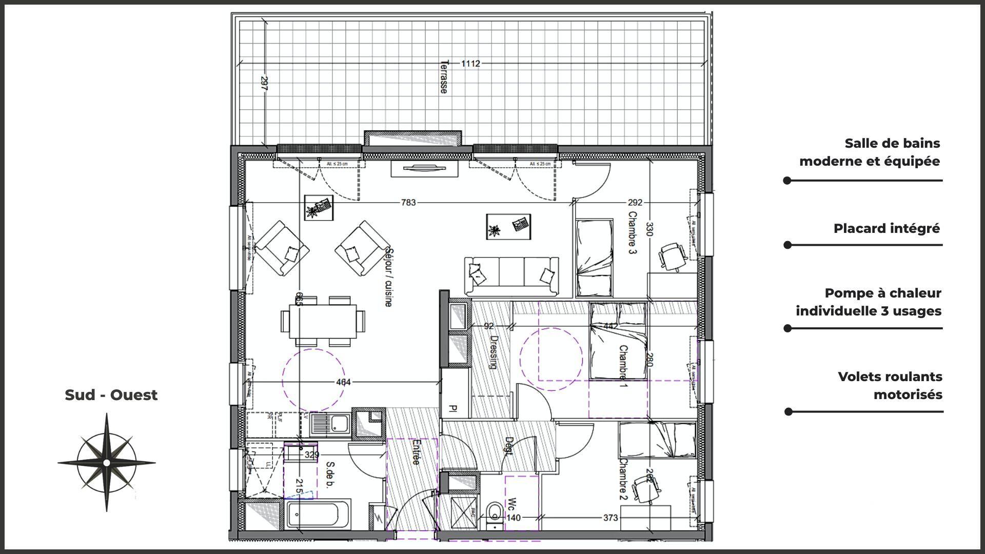
3 chambres

Iad France - Pierre Magerand (XX XX XX XX XX ) vous propose : Appartement 4 pièces avec grande terrasse. BIEN LIRE L'ANNONCE ! APPARTEMENT DISPONIBLE 2028 ! Situé sur l'avenue Barbier Daubrée, venez découvrir ce magnifique 4 pièces de ...

Lire la suite

IAD FRANCE

IAD FRANCE

Ce bien vous est proposé par pierre magerand.

Voir ses autres annoncesVoir le barème d'honoraires

Caractéristiques

  • Ascenseur
  • Parking
  • Balcon / Terrasse
  • Dernier étage

Prix par rapport au secteur

Le prix au m² de ce bien (4 021 € / m²) est supérieur à la moyenne du secteur.

Moyenne à Clermont-Ferrand : 2 134 € / m²

À propos du prix

Honoraires à la charges de

Vendeur

Géorisques

Les informations sur les risques auxquels ce bien est exposé sont disponibles sur le site Géorisques. georisques.gouv.fr