Logo Jinka

Villerupt (54190)

03 avr. à 04:38

4 055 € / m²AppartementAgence

287 910 €

71 m²
3 pièces
2 chambres

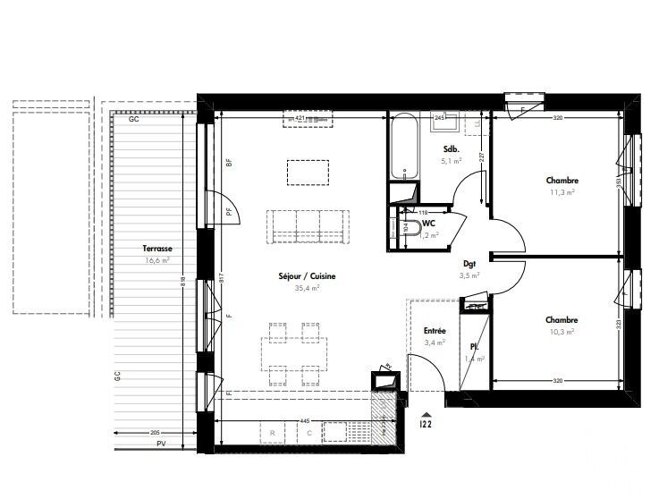
Iad France - Habib Rahim (XX XX XX XX XX ) vous propose : VOTRE HAVRE DE PAIX AUX PORTES DU LUXEMBOURG À Villerupt, au cOEur de l'éco-quartier Cantebonne, découvrez ce superbe T3 de 71,70 m² environ avec terrasse dans ...

Lire la suite

IAD FRANCE

IAD FRANCE

Ce bien vous est proposé par habib rahim.

Voir ses autres annoncesVoir le barème d'honoraires

Caractéristiques

  • Balcon / Terrasse

Prix par rapport au secteur

Le prix au m² de ce bien (4 055 € / m²) correspond à la moyenne du secteur.

Moyenne à Villerupt : 4 023 € / m²

À propos du prix

Honoraires à la charges de

Vendeur

Géorisques

Les informations sur les risques auxquels ce bien est exposé sont disponibles sur le site Géorisques. georisques.gouv.fr