Logo Jinka

Clermont-Ferrand (63100)

03 avr. à 08:24

4 069 € / m²AppartementAgenceLa gare

170 900 €

42 m²
2 pièces
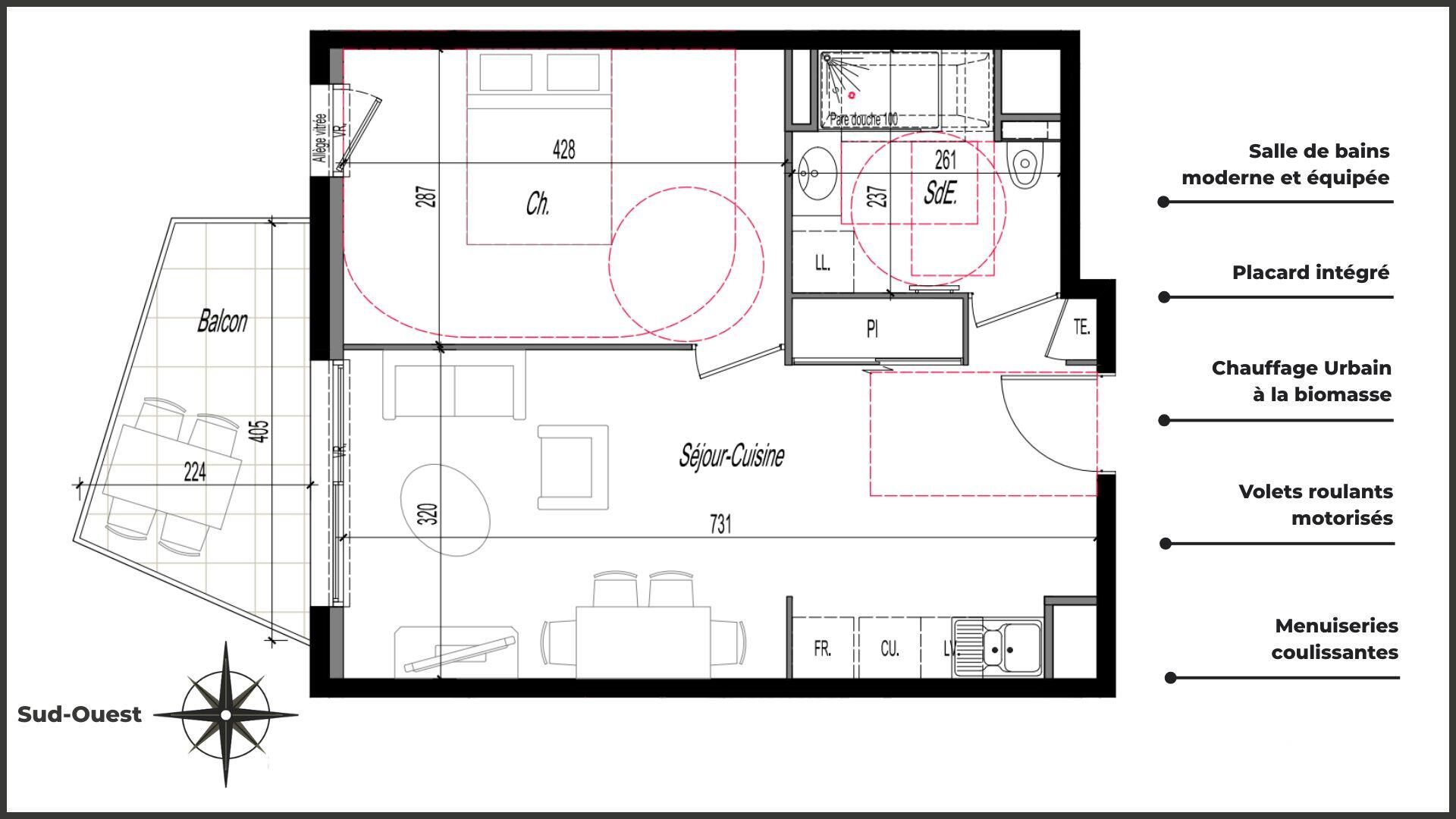
1 chambre

Iad France - Pierre Magerand (XX XX XX XX XX ) vous propose : Appartement 2 pièces avec balcon. BIEN LIRE L'ANNONCE ! APPARTEMENT DISPONIBLE 2027 ! Situé au cOEur du projet emblématique Origine Franc Rosier sur l'avenue de la ...

Lire la suite

IAD FRANCE

IAD FRANCE

Ce bien vous est proposé par pierre magerand.

Voir ses autres annoncesVoir le barème d'honoraires

Caractéristiques

  • Ascenseur
  • Balcon / Terrasse
  • 2ème étage

Prix par rapport au secteur

Le prix au m² de ce bien (4 069 € / m²) est supérieur à la moyenne du secteur.

Moyenne à Clermont-Ferrand : 2 900 € / m²

À propos du prix

Honoraires à la charges de

Vendeur

Géorisques

Les informations sur les risques auxquels ce bien est exposé sont disponibles sur le site Géorisques. georisques.gouv.fr